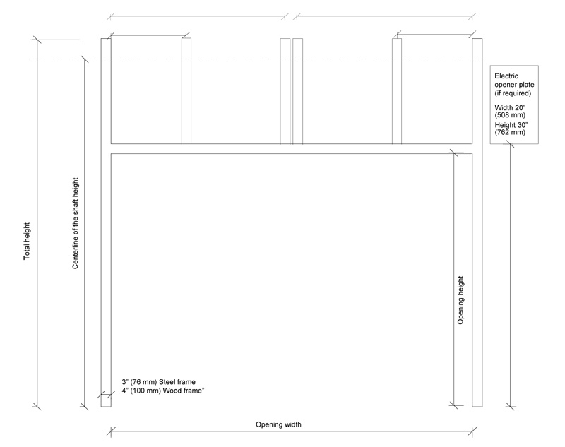
There are different lift types for commercial, agricultural or industrial doors. When we talk about a "Standard" lift movement, here are headroom requirements based on the type of hardware:
| Type | Radius: 12 in. | Radius: 15 in. |
| 2 in. Commercial Door height: 8 to 12 ft. | 12 in. | n.a. |
| 2 in. Commercial Door height: over 12 ft. | 13 ½ in. | 15 in. |
| 3 in. Industrial | n.a. | 15 in. |
Note: if you use a trolley-type operator, add 2 ½ inches.
IMPORTANT: do not use a Standard
lift movement if you have over 2 ft. (61 cm) of headroom. Use a "High Lift" movement. It is important to leave clear space above the garage door.
For Low Headroom applications, the minimum headroom requirement is this following:
| Type | Low Headroom Rear installation | Low Headroom Front installation |
| 2 in. Commercial Door height: 8 to 12 ft. | 4 in. | 8 in. |
| 2 in. Commercial Door height: over 12 ft. | 4 in. | 10 in. |
| 3 in. Industrial | 11 in. | 13 in. |
Note: if you use a Trolley type operator, add 2 ½ inches.


